您好,欢迎来到香港免费资料六曲大全官方网站!

嘉豫金属制品公司
客户服务热线

13967316148

关于我们ABOUT US

集通风管道,螺旋风管加工,设计,生产,销售,安装和售后维护为一体的通风产品企业

联系我们 / CONTACT US

香港免费资料六曲大全

联系人:孟先生
手 机:13967316148
电 话:钱先生 15957329585
地 址:浙江省嘉兴市秀洲区王店镇沿塘路西侧(嘉兴敬德机械科技有限公司内0007号车间)

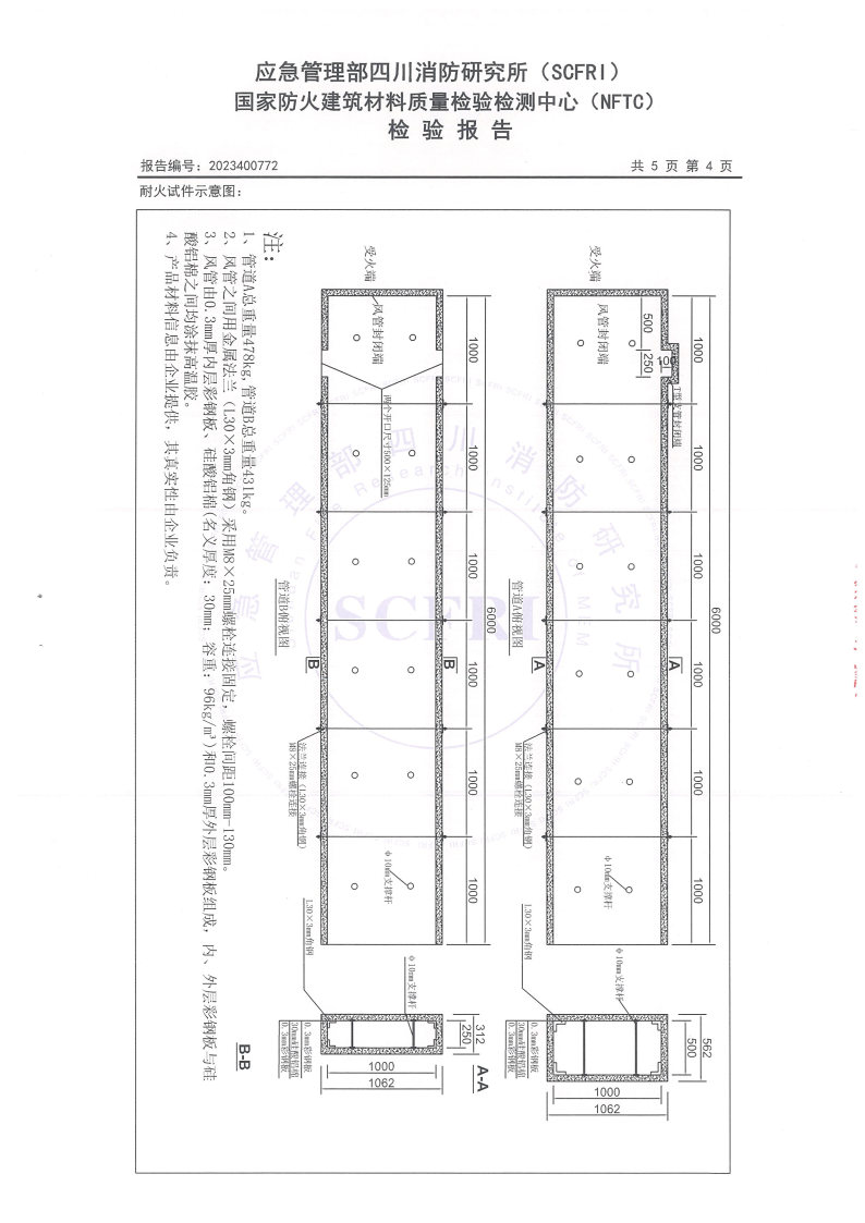
检测报告

‌我公司豫金蓝品牌“钢制隔热复合风管”通过国家防火建筑材料质量检验检测中心(NFTC)的2小时安全性能检测

在线客服
服务热线

服务热线

钱先生 15957329585

微信咨询
嘉豫金属制品公司
返回顶部