您好,欢迎来到香港免费资料六曲大全官方网站!

嘉豫金属制品公司
客户服务热线

13967316148

新闻中心NEWS CENTER

集通风管道,螺旋风管加工,设计,生产,销售,安装和售后维护为一体的通风产品企业

新闻中心 / NEWS CENTER
联系我们 / CONTACT US

香港免费资料六曲大全

联系人:孟先生
手 机:13967316148
电 话:钱先生 15957329585
地 址:浙江省嘉兴市秀洲区王店镇沿塘路西侧(嘉兴敬德机械科技有限公司内0007号车间)

新闻动态

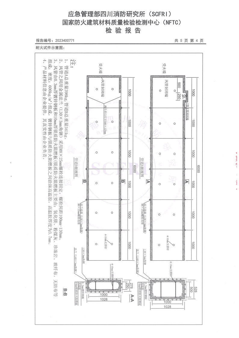
我公司豫金蓝“钢制隔热复合风管”通过国家防火建筑材料质量检验检测中心(NFTC)的1-2小时安全性能检测

发布时间:2024-01-18 浏览量:2136
分享到:

我公司豫金蓝品牌“钢制隔热复合风管”通过国家防火建筑材料质量检验检测中心(NFTC)的1-2小时安全性能检测

检测报告如下:

img03694_Page1.jpg

img03694_Page2.jpg

img03694_Page3.jpg

img03694_Page4.jpg

img03694_Page5.jpg

img03694_Page6.jpg

img03694_Page7.jpg

img03694_Page8.jpg

你觉得这篇文章怎么样?

0 0
标签:全部
本文网址:/news/57.html

相关产品

    暂无相关产品...
在线客服
服务热线

服务热线

钱先生 15957329585

微信咨询
嘉豫金属制品公司
返回顶部